QUINCEAVA SEMANA
Trabajo
completo de costos y presupuestos
Nombre:
Caso práctico
del curso de costos y presupuestos.
Introducción:
Con el
presente trabajo intentamos realizar un presupuesto con metrado correspondiente,
el análisis de costo de la edificación y finalmente la entrega de la maqueta de
los planos Metrados y presupuestados y completar con eficiencia el objetivo
planteado.
Objetivo:
El objetivo
de este trabajo es crear una maqueta del tema seleccionado anteriormente con
sus debidas características que así fácilmente pueden ser reconocidos por
quienes observen las distintas cualidades mostradas en este trabajo.
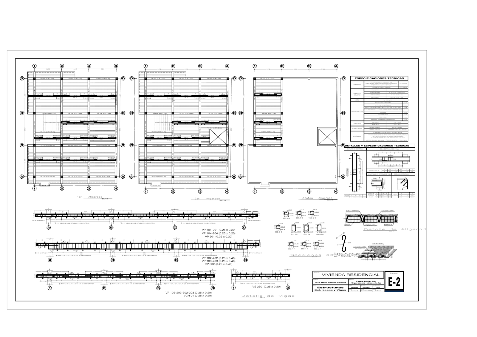
Planos:
Fotos
de la Maqueta:
Resumen
En El S10
Es un
resumen del análisis realizado en el S10, lo siguiente se enviara en un formato
PDF mostrando detalle a detalle las partidas analizadas y el análisis de cada
partida.











Comentarios
Publicar un comentario